МОНТАЖ ПРОИЗВОДИТСЯ СТРОГО НА РОВНУЮ ПОВЕРХНОСТЬ, БЕЗ УКЛОНОВ, БУГРОВ И ЯМ.
Цвет комплектующих может отличаться, отгружается из наличия на складе.
Надежная и долговечная детская игровая - спортивная конструкция из древесины сибирской лиственницы для детской площадки в зонах общественного пользования: парки, скверы, дворы многоквартирных домов, территории детских садов, школ и торгово-развлекательных центров, коттеджные поселки. Поможет организовать интересный досуг детям и отлично сочетается с городским и природным ландшафтом.
Детская площадка предназначена для детей от трех до четырнадцати лет, создает условия для общего физического развития ребенка, развития координации движений и ловкости, смелости и преодоления страха высоты, развивает чувство коллективизма в массовых играх, а игровые панели способствуют развитию логического мышления и воображения.
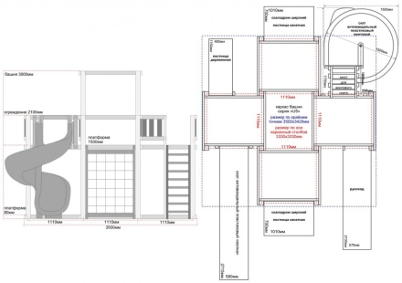
Основа детской игровой - спортивной конструкции – башня и четыре балкона «серия F». Конструкция оснащена плоской прозрачной крышей, встроенным полом, встроенным столиком с лавками в нижней части конструкции, пластиковым антивандальным скатом с превосходной скользящей поверхностью, антивандальным винтовым скатом с переходным мостиком, «П»-образным деревянным рукоходом, скалодромом, канатной лестницей с армированным канатом, деревянной лестницей, антивандальными пластиковыми игровыми панелями. Для безопасности ребенка предусмотрены перила на лестнице, заборчики и ограждения над зонами препятствий (скат).
Выберете более подходящий для Вас цвет ската: желтый, зеленый, красный, синий.
Комплектация (обозначение габаритов – длина/ширина/высота):
- каркас башня и четыре балкона «серия F1» 3500х3420х3000мм. (высота от уровня площадки 3000мм.) - 1ком.;
- стойка центральная 80х40х2200мм. (длина/ширина/высота) - 2ком.;
- платформа - пол встроенный 1200х940х60мм. (установка на высотах от уровня площадки 80мм. и 1500мм.) - 10ком.;
- стол с лавочками встроенный 2200х1280х700мм. (высота стола 700мм., лавочки 350мм.) - 1ком.;
- ограждение - забор длинный 1200х40х620мм. (высота от уровня платформы 700мм.) - 6ком.;
- ограждение - забор короткий 620х40х620мм. (высота от уровня платформы 700мм.) - 2ком.;
- крыша плоская прозрачная (поликарбонат) 1200х940х60мм. (высота от уровня площадки 3000мм.) - 1ком.;
- лестница-стремянка деревянная 1650х480х80мм. / 5 ступеней (установка на высоту от уровня площадки 1500мм.) - 1ком.;
- перила для лестницы деревянные 1650х340х40мм. (высота от уровня ступеней 600мм.) - 1ком.;
- ограждение над скатом 1200х130х860мм. (высота от уровня платформы 700мм.) - 1ком.;
- скат пластиковый «Bronco» антивандальный 3270х580х570мм. (ширина ската внутри 400мм., высота борта 150мм.; установка на высоту от уровня площадки 1500мм.) - 1ком.;
- мостик с ограждением для винтового ската 1200х990х780мм. (высота от уровня платформы 700мм.) - 1ком.;
- скат пластиковый «винтовой» антивандальный 1500х1500х2000мм. (ширина ската внутри 450мм., высота борта 300мм.; установка на высоту от уровня площадки 1500мм.) - 1ком.;
- рукоход «П»-образный деревянный 2200х570х2200мм. (установка на высоту от уровня площадки 2200мм.) - 1ком.;
- скалодром широкий 1650х1010х80мм. / 12 камней (установка на высоту от уровня площадки 1500мм.) - 1ком.;
- лестница канатная армированный канат 1650х1010х80мм. (установка на высоту от уровня площадки 1500мм.) - 1ком.;
- игровая панель (пластик, дерево) 1200х40х750мм. - 2 ком.;
- анкер арматурный 800мм. (вбивается в основание площадки) - 10ком.;
Габариты конструкции: 5545х4000х3000мм. (длина/ширина/высота); S-22,2м²
Габариты площадки для установки конструкции с учетом зоны безопасности: 8545х7000мм. (длина/ширина); S-59,8м².
Для перевозки транспортной компанией:
- общий вес 965,7кг.; общий объем 7,3м³;
- количество мест 47 (самое длинное место 3270мм., самое широкое место 1500мм., самое высокое место 1500мм.);
- в жесткую обрешётку 1 место-пластиковый скат (вес 38кг., 3270х580х570мм., объем 1,1 м³.), 1 место-пластиковый скат винтовой (вес 40кг., 2000х1500х1500мм., объем 4,5 м³.)
Материалы:
Каждая деревянная деталь детской игровой конструкции (конструктор) состоит из древесины сибирской лиственницы: клееный и сращенный брус лиственницы сечением 90х90мм.; клееный и сращенный брус лиственницы сечением 80х40мм., доска – планкен из лиственницы сечением 90х20мм. (камерная сушка, влажность 8-16%). Каждая деревянная деталь обработана в два слоя безопасным для детей покрытием – маслом для террасной доски и восковой лазурью «ADLER» (цвет «орех», «зеленое яблоко»), торцы деталей дополнительно запечатаны мастикой. Рекомендуем обновлять покрытие деревянных элементов конструкции (при естественном износе покрытия, один раз в 2-3 года) или проводить реставрацию отдельных конструктивных элементов (при механическом повреждении), необходимо подобрать по цвету масло для террасной доски, предназначенное для эксплуатации на улице, любого производителя.
Крепеж и подвесы из оцинкованной стали от европейских производителей обеспечивает надежное соединение каждого элемента конструкции.
Фурнитура от европейского производителя «КВТ» (скаты, сидения для качелей, игрушки, канаты, крепежи), надежная и долговечная, защищена от воздействия УФ излучения (не выгорает), влагостойкая и морозостойкая, диапазон эксплуатации от - 60°С до +60°С. Антивандальный пластиковый скат обладает отличной скользящей поверхностью, защитой от воздействия солнечных лучей (не греется, не выгорает), не образует статического напряжения.
Рекомендованная распределенная единовременная нагрузка: игровая платформа 350кг., деревянная лестница 100кг., скалодром 150кг., канатная лестница 150кг., рукоход 150кг, столик с лавочками 200кг., скат 150кг.
Стоимость установки рассчитает менеджерНажимая на кнопку "Задать вопрос" Вы даете согласие на обработку персональных данных






