Подходит для установки во двор многоэтажного дома. Антивандальное оборудование.
Бизиборд Азбука РЭ003 представляет собой панель с нарисованными на ней буквами различного цвета.
Оборудование предназначено для установки на детских игровых площадках..
Комплект поставки:
- Развивающий элемент Азбука — 1 шт.
- Паспорт изделия..
Особенности монтажа:
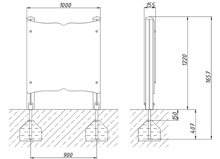
Монтаж оборудования осуществляется путем бетонирования опор каркаса на глубину не менее 400 мм. Бетонирование производится таким образом, чтобы поверхность фундамента была выполнена на отметке -150 мм от уровня площадки. Оставшееся пространство ям после монтажа засыпается с уплотнением до уровня детской площадки.
Материалы конструкции и их покрытие:
- Стойки — брус клееный сечением 100х100 мм.
- Накладки: влагостойкая березовая фанера толщиной 24 мм ГОСТ 3916.1-96.
- Элементы крепежа оцинкованы и снабжены предохранительными колпачками. Торцевые отверстия труб закрыты пластиковыми заглушками.
- Фанерные детали предварительно обработаны антисептической выравнивающей грунтовкой. Металл — полимерно-порошковая краска.
- Рисунок нанесен методом печати на УФ принтере и покрыт лаком.
- Покрытия устойчивы к сложным атмосферным условиям, истиранию, воздействию ультрафиолета.
Стоимость установки рассчитает менеджерНажимая на кнопку "Задать вопрос" Вы даете согласие на обработку персональных данных






